Ce dossier, créé en 1996 lors d'une enquête topographique, a été enrichi à l'occasion d'une étude spécifique en 2020. Lors de cette nouvelle investigation, une importante couverture photographique a été réalisée, disponible sur la photothèque. Consultez ici.
- inventaire topographique, Uzel
- enquête thématique régionale, Inventaire du patrimoine lié à l’histoire toilière de la Bretagne
Dossier non géolocalisé
-
Aire d'étude et canton
Uzel - Uzel
-
Commune
Le Quillio
-
Cadastre
1987
AD
249
-
Dénominationséglise paroissiale
-
VocablesNotre-Dame
-
Parties constituantes non étudiéescalvaire, croix de cimetière, enclos, cimetière
Le Quillio ou Quilliou, démembrement de la paroisse primitive de Merléac, est cité en 1285 dans une donation du vicomte Geoffroy de Rohan. La nef peut remonter à la première moitié du 15e siècle. A partir du 3e quart du 15e siècle d'importants travaux d’embellissement sont réalisés sous le vicomte Jean II de Rohan. L'exceptionnel porche calvaire, au sud de la nef est construit vers 1460-1470. La chapelle sud, consacrée à Notre-Dame de Délivrance, puis à la Vierge du Rosaire, a été datée par une campagne de dendrochronologie appliquée à sa charpente de 1486-1487. Elle a conservé sur son mur oriental les vestiges d'un grand programme pictural des années 1500, centré autour d'une rarissime représentation de la Vierge enceinte.
La chapelle privative de Rohan, au nord du chœur, est reconstruite vers 1510-1520. Seul espace voûté, elle est surmontée de la chambre du trésor dont l'escalier en vis est défendu par une porte blindée. Cette chapelle conserve outre les armes de cette famille sur un culot sculpté tenues par un ange, un très rare dispositif de crédence liturgique traversante communicant directement avec le chœur.
Le calvaire de l'enclos est édifié vers 1530. Des décors peints sont réalisés sur le lambris des fausses voûtes à la fin du 17 siècle, dont ceux redécouverts en 2017 dans la chapelle sud. En 1751, construction de l'imposant clocher-porche à l'ouest et de la chapelle des fonts baptismaux. En 1773, le portail de l'enclos ses piliers et sa belle grille de fer forgé réalisée par G. Ourry forgeron de Grâce-Uzel. En 1791, l'ancien chevet est démoli et remplacé par un nouveau chevet à trois pans destiné à recevoir le mobilier de l'abbaye de Bon Repos racheté par un négociant en toiles de la paroisse.
Vers le milieu du 19e siècle, l'intérieur de l'église fait l'objet d'une importante campagne de décoration. Le décor peint de la fausse voûte lambrissée est réalisé en 1858 par Raphaël Donguy de Saint-Brieuc. Les retables néo gothiques de la chapelle nord et de la chapelle sud par le sculpteur Paul Guibé en 1865 et 1868. Une grande composition peinte sur toile représentant la procession des saints de la Bretagne depuis les origines jusqu'à l'époque moderne est commandée en 1936 au peintre Victor Boner pour orner les cinq pans de murs du chœur.
(Jean-Jacques Rioult. 2020)
Eglise construite à la 2e moitié du 15e siècle (mur sud de la nef et le porche sud). Les bras du transept datent de la 1ère moitié du 16e siècle. Cette campagne de construction des 15e et 16e siècles a été faite pour les Rohan, dont les armes figurent dans le bras nord du transept. La nef a été reprise au 2e quart du 18e siècle (Couffon donne la date de 1733), dont la chapelle des fonts. Le clocher porte la date 1751. Le chœur a été construit en 1791 (porte la date). Remaniement et décoration intérieure vers 1860 (date portée par le lambris de couvrement de la nef). Restauration de la couverture en 1920-1921 par l'architecte Courcoux. Restauration de la couverture vers 1980. La croix du cimetière, côté nord de l'église, ne conserve que son socle qui porte la date 1767. Le calvaire du 17e siècle est étudié en dossier partie constituante.
(Jean-Pierre Ducouret, enquête topographique 1995)
L’église Notre-Dame de la Délivrance est un témoin remarquable de la période de prospérité que connait Le Quillio au 17e et 18e siècle, grâce à l'activité toilière. Situé dans une trève au cœur de la manufactures des « bretagnes », l’édifice connait différents chantiers d’aménagement et d’embellissement reflétant l’enrichissement de la population, portée par le dynamisme du commerce des toiles. Leurs exécutions reflètent l’implication d’un important et influent milieu marchand, engagé à la fois sur dans l’aspect financier et décisionnel.
L'édifice connait d'abord deux chantiers au 17e siècle : un premier en 1668, lorsque le général fait construire un dôme pour une horloge sur le clocher de l’église. Le dôme est réalisé par le menuisier Mathurin Le Toux et le couvreur Edouart. Puis, En 1686, le peintre Dupont de Pontivy peint la voute lambrissée du transept sud. La mention du peintre est accompagnée de celle du curé Guillaume Priat et des fabriciens, deux marchands de toiles : François Hervé et Joseph Collin.
Le 18e siècle se distingue par l'élan bâtisseur des paroisses de la manufacture des Bretagnes, une tendance dans laquelle s'intègre le général du Quillio par l'organisation de plusieurs projets successifs. En 1728, la sacristie est reconstruite contre le chevet de l’église. La même année, une clôture est installée, répondant aux recommandations de la Réforme catholique : séparer les espaces sacrés et profanes, sans obstruction visuelle. Il est nommé trois marchands de toiles, députés pour suivre le chantier : Eustache Priat (sieur de Beaubourg), Joseph Le Flahec (sieur Desmottes) et Charles Olllitrault (sieur de Kermarec). Le général décide de reconstruire la tour du clocher en 1743. Trois marchands de toiles sont alors nommés députés : Joseph Le Flahec, Charles Ollitrault et Ollivier du Coédic (sieur de Cosquer). Le chantier est terminé en 1751, comme le laisse deviner la date gravée sur le mur sud du clocher. En 1762, le général nomme 4 députés dont deux sont identifiable comme marchands, pour finir la charpente en bois et la couverture en ardoises de la flèche : Etienne Priat (sieur de Beaubourg), Jean-Baptiste Blanchard (sieur de Villéo), ainsi que Jean et Joseph Caillibot. Lorsque la couverture de l'église nécessite des réparations en 1770, les tréviens en profite pour ajouter un petit dôme qui abritera une cloche. La bonne conduite de ce chantier d’embellissement qui s’ajoute à un projet de nécessité est assuré par quatre marchands, nommés députés : Etienne Priat, Jacques Guillo (sieur de Lohan), Jean-Baptiste Blanchard et Louis François Anne Robin (sieur de Morhery). L'ouvrage est réalisé sous la direction du maitre charpentier Louis le Huidoux. En 1772, le portail de l'enclos paroissial est réparé dans le cadre d'un réaménagement plus large de l'enclos paroissial dont les sources mentionnent qu'il était en mauvais état. Jean Nourry, forgeron de Grâce réalise alors un portail en fer forgé. À la suite de l’acquisition par un marchands de toiles de la trève du mobilier liturgique du chœur de l’abbaye de Bon-Repos en 1790, le chœur et la sacristie sont reconstruit en 1791. Le chœur était jusque là, séparé de la nef par un arc diaphragme et une poutre de gloire. Le chantier permet ainsi d’agrandir l'espace et d'offrir une meilleur visibilité sur le choeur, pour accueillir le mobilier.
(Enquête thématique, prospérité toilière et chantier paroissiaux, Paul-Alexis Borgo, 2025)
-
Période(s)
- Principale : 2e moitié 15e siècle, 1ère moitié 16e siècle, 18e siècle
- Secondaire : 2e moitié 17e siècle, 18e siècle, 3e quart 19e siècle, 1er quart 20e siècle
- Principale : 1ère moitié 15e siècle , (incertitude)
-
Dates
- 1686, porte la date
- 1751, porte la date
- 1767, porte la date
- 1772, daté par source
- 1791, porte la date
- 1920, daté par source
-
Auteur(s)
- Auteur : architecte attribution par source
-
Auteur :
Le Corre Louis , dit(e) Dupontpeintre signatureLe Corre LouisCliquez pour effectuer une recherche sur cette personne.
Peintre, originaire de Pontivy.
-
Auteur :
Nourry Jeanferronnier attribution par sourceNourry JeanCliquez pour effectuer une recherche sur cette personne.
Ferronnier, originaire de Grâce-Uzel.
Façade sud en granite pierre de taille ; chapelle nord en schiste ; enduit partiel sur le clocher. Voûte d'ogives sur la chapelle nord Toit conique sur la tour d'escalier nord.
(Jean-Pierre Ducouret, enquête topographique 1995)
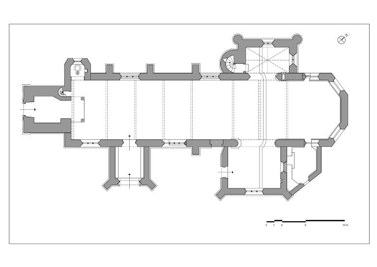
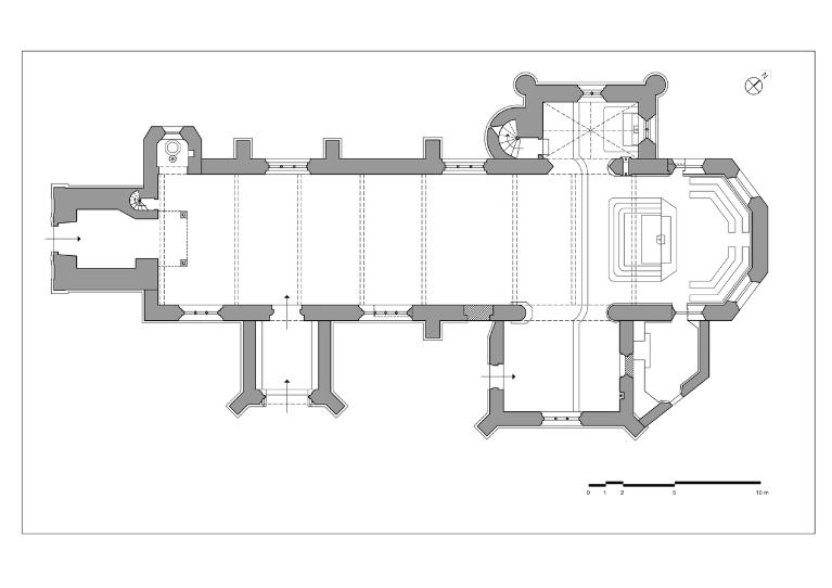
L’église est construite en pierre de taille de granite, à l’exception de la chapelle nord en moellons de schiste. L’ensemble est couvert d’un toit en ardoise à longs pans, à pignons découverts. L’édifice de plan en croix latine, comprend une nef à vaisseau unique précédée d’un clocher-porche, et un transept saillant. Au sud, la nef est flanquée d’un porche-calvaire, et au nord, d’une chapelle des fonts baptismaux. Le chœur, à chevet polygonal à cinq pans, est prolongé au sud par une sacristie adossée. La chapelle du transept nord abrite au-dessus d’elle une salle du trésor, accessible par un escalier à vis logé dans une tour accolée à l’ouest. Le clocher, partiellement enduit, est surmonté d’une flèche polygonale. L’ensemble est couronné d’un épi de faîtage figurant un coq doré. Sa façade occidentale se distingue par un portail de style Renaissance, avec deux pilastres d’ordre dorique, ornés de têtes d’anges sur les chapiteaux, qui soutiennent un fronton cintré interrompu par une coquille Saint-Jacques et une tête d’ange. Une niche supérieure, encadrée de pilastres d’ordre ionique, supporte un entablement surmonté d’un fronton triangulaire et flanquée de volutes en aileron rentrant. Les angles du transept sont marqués par des pilastres. Les baies adoptent des formes variées selon les parties de l’édifice : en plein cintre dans le chœur et la chapelle des fonts et le chœur, en arc brisé dans la nef et en arc en lancette dans les chapelles du transept. L’église s’inscrit dans un enclos paroissial fermé par un portail en fer forgé, encadré de pilastres en pierre de taille surmontés de pots à feu. L’ensemble est orné d’un écusson en médaillon et dominé par une couronne surmontée d’une croix aux bras terminés en fleur de lys.
(Enquête thématique, prospérité toilière et chantier paroissiaux, Paul-Alexis Borgo, 2025)
-
Murs
- granite pierre de taille
- schiste moellon
- enduit partiel
-
Toitsardoise
-
Plansplan en croix latine
-
Étages1 vaisseau
-
Couvrements
- lambris de couvrement
- voûte d'ogives
-
Couvertures
- toit à longs pans
- flèche polygonale
- toit conique
- noue
- pignon découvert
-
Escaliers
- escalier hors-oeuvre : escalier en vis sans jour
- en maçonnerie
-
État de conservationrestauré
-
Techniques
- sculpture
- peinture
-
Représentations
- armoiries
- saint, Vierge
-
Précision représentations
Armoiries : armes des Rohan, support : console du bras nord du transept.
Peinture du transept sud : Représentation de dix saint en pieds (un par travée). Les figures de saint Maurice, saint Jean, de la Vierge à l’Enfant, de saint Joseph et de saint Jacques ornent la partie ouest des lambris de couverture. Les figures de saint Pierre, saint Paul, saint Yves, saint Corentin et saint François d’Assise en ornent la partie est. Chaque saint beneficie d'une cartouche qui precise l'iconographie. L'inscription peinte dans le cartouche, sous saint Yves, mentionne les noms des commanditaires, la date de l'œuvre et le nom de l'artiste : « Ceste vouste a este / peindre l’an 1686 / Mire Guillaume Prial curé / H gens Joseph Colin et / François Herve fabriques / Dupont peintre ». Les personnages s'inscivent dans des niches faitent de motifs continus de feuilles dorées et surmontées de pots à fleurs, dans un décrode ricueaux. Support : Lambris de couvrement du transept sud
-
Statut de la propriétépropriété de la commune
-
Intérêt de l'œuvreà signaler
-
Éléments remarquablesélévation
-
Protectionsclassé MH, 1986/06/10
-
Référence MH
- (c) Région Bretagne
- (c) Région Bretagne
- (c) Région Bretagne
- (c) Région Bretagne
- (c) Région Bretagne
- (c) Région Bretagne
- (c) Région Bretagne
- (c) Inventaire général, ADAGP
- (c) Inventaire général, ADAGP
- (c) Inventaire général, ADAGP
- (c) Inventaire général, ADAGP
- (c) Inventaire général, ADAGP
- (c) Inventaire général, ADAGP
- (c) Inventaire général, ADAGP
- (c) Inventaire général, ADAGP
- (c) Inventaire général, ADAGP
- (c) Inventaire général, ADAGP
- (c) Inventaire général, ADAGP
- (c) Inventaire général, ADAGP
- (c) Inventaire général, ADAGP
- (c) Inventaire général, ADAGP
- (c) Inventaire général, ADAGP
- (c) Inventaire général, ADAGP
- (c) Région Bretagne
- (c) Région Bretagne
- (c) Région Bretagne
- (c) Région Bretagne
- (c) Région Bretagne
- (c) Région Bretagne
- (c) Région Bretagne
- (c) Région Bretagne
- (c) Région Bretagne
- (c) Région Bretagne
- (c) Région Bretagne
- (c) Région Bretagne
- (c) Région Bretagne
- (c) Région Bretagne
- (c) Région Bretagne
- (c) Région Bretagne
- (c) Région Bretagne
- (c) Région Bretagne
- (c) Région Bretagne
- (c) Région Bretagne
- (c) Région Bretagne
- (c) Région Bretagne
- (c) Région Bretagne
- (c) Région Bretagne
- (c) Région Bretagne
- (c) Région Bretagne
- (c) Région Bretagne
- (c) Région Bretagne
- (c) Région Bretagne
- (c) Région Bretagne
- (c) Région Bretagne
- (c) Région Bretagne
- (c) Région Bretagne
- (c) Région Bretagne
- (c) Région Bretagne
- (c) Région Bretagne
- (c) Région Bretagne
- (c) Région Bretagne
- (c) Région Bretagne
- (c) Région Bretagne
- (c) Région Bretagne
- (c) Région Bretagne
- (c) Région Bretagne
- (c) Région Bretagne
- (c) Région Bretagne
- (c) Région Bretagne
- (c) Région Bretagne
- (c) Région Bretagne
- (c) Région Bretagne
- (c) Région Bretagne
- (c) Région Bretagne
- (c) Région Bretagne
- (c) Région Bretagne
- (c) Conseil général des Côtes-d'Armor
- (c) Région Bretagne
- (c) Région Bretagne
- (c) Région Bretagne
- (c) Région Bretagne
- (c) Région Bretagne
- (c) Région Bretagne
- (c) Région Bretagne
- (c) Région Bretagne
- (c) Région Bretagne
- (c) Région Bretagne
- (c) Région Bretagne
- (c) Région Bretagne
- (c) Région Bretagne
- (c) Région Bretagne
- (c) Région Bretagne
- (c) Région Bretagne
- (c) Région Bretagne
- (c) Région Bretagne
- (c) Région Bretagne
- (c) Région Bretagne
- (c) Région Bretagne
- (c) Région Bretagne
- (c) Région Bretagne
- (c) Région Bretagne
- (c) Région Bretagne
- (c) Région Bretagne
- (c) Région Bretagne
- (c) Région Bretagne
- (c) Région Bretagne
- (c) Région Bretagne
Documents d'archives
-
2 O 260/2
-
Archives départementales des Côtes-d'Armor : 20 G 702, 20 G 703
Série G. Clergé séculier ; Sous-série 20 G. Fonds des paroisses :
- 20 G 702 : Registres de délibérations (1689-1773)
- 20 G 703 : Comptes de l'église trèviale (1659-1698)
20 G 702, 20 G 703
Bibliographie
-
Région Bretagne (Service de l'Inventaire du patrimoine culturel)
COUFFON, René. Répertoire des Églises et Chapelles du diocèse de Saint-Brieuc et Tréguier. Mémoires de la Société d'Emulation des Côtes-du-Nord. Saint-Brieuc : Les Presses Bretonnes, 1939-1947.
t. II, p. 425-426 -
Région Bretagne (Service de l'Inventaire du patrimoine culturel)
LE SAULNIER DE SAINT-JOUAN, Régis. Dictionnaire des communes du département des Côtes-d'Armor : éléments d'histoire et d'archéologie. Saint-Brieuc : Conseil Général des Côtes-d´Armor, 1990.
p. 594 -
Région Bretagne (Service de l'Inventaire du patrimoine culturel)
TANGUY, Bernard. Dictionnaire des noms de communes, trèves et paroisses des Côtes-d'Armor : origine et signification. Douarnenez : Ar Men-Le Chasse Marée, 1992.
p. 252 -
Région Bretagne (Service de l'Inventaire du patrimoine culturel)
OGEE, Jean. Dictionnaire historique et géographique de la province de Bretagne. Nantes, tome 2, 1779, 552 p.
p. 393 -
Région Bretagne (Service de l'Inventaire du patrimoine culturel) : 22 G / ART G / OM G
[Exposition. Ploëzal, Château de la Roche-Jagu, 1991]. Trésors secrets des Côtes-d'Armor : 1000 ans d'Art et d'Histoire. Saint-Brieuc : Conseil général des Côtes-d'Armor, 1991.
-
Bibliothèque universitaire. Université Rennes 2 : MH 2716
GUiLLEMOT Anthony, Prospérité toilière et chantiers paroissiaux dans les paroisses rurales de la manufacture des « bretagnes » 1650-1830, Mémoire de master d'Histoire, sous la direction de George Provost, Université Rennes 2, 2007
p. 129-133
Stagiaire à l'Inventaire