Chargé d'études d'Inventaire du patrimoine à la Région Bretagne.
Résultats de la recherche : "Fleuridas Patrick" 62 résultats
Notice d'illustration
IVR53_20232905466NUCA
Batterie d'artillerie de côte (Mo 86 b) puis station d’expérimentation agricole, Vézen Doquet (Saint-Pol-de-Léon)
Plan d'un bunker - casemate de type 669 (dessin : Patrick Fleuridas)
Notice d'illustration
IVR53_20042904383NUCA
|
Bunker - casemate de type 623 avec créneau blindé pour mitrailleuse (A 35/24), Énez Vihan (Landéda)
Plan d'un bunker de type 623 (dessin : Patrick Fleuridas)
Fleuridas Patrick
Fleuridas Patrick
Cliquez pour effectuer une recherche sur cette personne.
Notice d'illustration
IVR53_20042904390NUCA
|
Abri avec une cloche à une embrasure (Type 648 pour pour sMG34 de 7,92 mm), Presqu'île de Kermorvan (Le Conquet)
Typologie : abri de type H 648 avec une cloche blindée. Dessin Patrick Fleuridas, Belgian Bunkersite (http://www.bunkers.be)
Fleuridas Patrick
Fleuridas Patrick
Cliquez pour effectuer une recherche sur cette personne.
Notice d'illustration
IVR53_20042904389NUCA
|
Abri avec garage et Tobrouk n° 2 (Type 601), Presqu'île de Kermorvan (Le Conquet)
Typologie : abri de type 601 pour canon avec chambre de troupe. Dessin Patrick Fleuridas, Belgian Bunkersite (http://www.bunkers.be)
Fleuridas Patrick
Fleuridas Patrick
Cliquez pour effectuer une recherche sur cette personne.
Notice d'illustration
IVR53_20042904370NUCA
|
Bunker - casemate de type 612 pour un canon de 10,5 cm, Le Port (Carantec)
Plan d'un bunker - casemate de type 612 (dessin : Patrick Fleuridas)
Fleuridas Patrick
Fleuridas Patrick
Cliquez pour effectuer une recherche sur cette personne.
Notice d'illustration
IVR53_20042904385NUCA
|
Bunker - casemate de type 676, Pointe de Roc'h Kroum (Roscoff)
Plan d'un bunker - casemate de type 676 (dessin : Patrick Fleuridas)
Fleuridas Patrick
Fleuridas Patrick
Cliquez pour effectuer une recherche sur cette personne.
Notice d'illustration
IVR53_20042904371NUCA
|
Groupe défensif côtier "Saint-Renan" codé "Re"
Typologie : casemate de type 669 pour canon de campagne avec soutes à munitions (495 m3 de béton / plan apparu en février 1943). Dessin Patrick Fleuridas, Belgian Bunkersite (http://www.bunkers.be)
Fleuridas Patrick
Fleuridas Patrick
Cliquez pour effectuer une recherche sur cette personne.
Notice d'illustration
IVR53_20042904369NUCA
|
Bunker - abri de type 604 pour un canon de campagne de 10,5 cm, Pointe de Penn al Lann (Carantec)
Plan d'un bunker - casemate de type 604 (dessin : Patrick Fleuridas)
Fleuridas Patrick
Fleuridas Patrick
Cliquez pour effectuer une recherche sur cette personne.
Notice d'illustration
IVR53_20042904381NUCA
Bunker - abri de type 621 pour un groupe de combat, Allée du Cosmeur, Pointe de Penn al Lann (Carantec)
Plan d'un bunker - abri de type 621 pour deux groupes de combat (dessin : Patrick Fleuridas)
Notice d'illustration
IVR53_20042904023NUCA
Bunker-abri de type 502 pour deux groupes de combat (B 53) dit le bunker de Keranroux, Collège La Fontaine Margot - Keranroux (Brest)
Plan d'un bunker - abri de type 502 pour deux groupes de combat (dessin : Patrick Fleuridas)
Notice d'illustration
IVR53_20242910056NUD
|
Station radar du Men Tan (Qu 13), Lescoff, pointe du Raz (Plogoff)
Coupes du bunker de commandement de type L 479 Anton de la chasse nocturne et diurne (dessin : Patrick Fleuridas)
Fleuridas Patrick
Fleuridas Patrick
Cliquez pour effectuer une recherche sur cette personne.
Notice d'illustration
IVR53_20042904380NUCA
Bunker - casemate de type 611 avec soute à munitions, Fort Bloscon (Roscoff)
Plan d'un bunker - casemate de type 611 (dessin : Patrick Fleuridas)
Notice d'illustration
IVR53_20242910057NUD
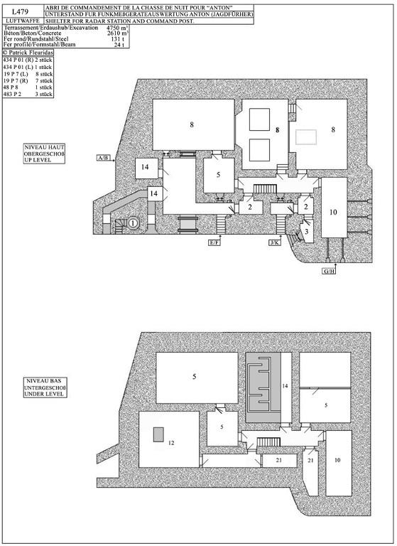
|
Station radar du Men Tan (Qu 13), Lescoff, pointe du Raz (Plogoff)
Plans du bunker de commandement de type L 479 Anton de la chasse nocturne et diurne (dessin : Patrick Fleuridas). Il est sur deux niveaux
Fleuridas Patrick
Fleuridas Patrick
Cliquez pour effectuer une recherche sur cette personne.
Notice d'illustration
IVR53_20242910054NUD
|
Station radar du Men Tan (Qu 13), Lescoff, pointe du Raz (Plogoff)
Coupes du bunker de type L 485 pour radar Mammut (dessin : Patrick Fleuridas, Yves Delfosse)
Fleuridas Patrick
-
Fleuridas Patrick
Cliquez pour effectuer une recherche sur cette personne.
Notice d'illustration
IVR53_20242910055NUD
|
Station radar du Men Tan (Qu 13), Lescoff, pointe du Raz (Plogoff)
Plan et coupe du bunker de type L 485 pour radar Mammut (dessin : Patrick Fleuridas, Yves Delfosse)
Fleuridas Patrick
-
Fleuridas Patrick
Cliquez pour effectuer une recherche sur cette personne.
Dossier
Dossier IA22133625
| Réalisé
par
Bunker - casemate de type 680 pour un canon de 7,5 cm ou 7,62 cm, Domaine de la Tour de Cesson, rue de la Tour (Saint-Brieuc)
Dossier
Dossier IA22133631
| Réalisé
par
Bunker-abri de type 502 pour deux groupes de combat, extrémité Est de la pointe, Domaine de la Tour de Cesson, rue de la Tour (Saint-Brieuc)
Dossier
Dossier IA22133621
| Réalisé
par
Bunker - casemate de type 612 pour un canon de campagne ou obusier de 7,62 cm ou 10,5 cm, Domaine de la Tour de Cesson, rue de la Tour (Saint-Brieuc)
Lécuillier Guillaume
(Contributeur)
Cliquez pour effectuer une recherche sur cette personne.
Lécuillier Guillaume
Chargé d'études d'Inventaire du patrimoine à la Région Bretagne.
Dossier
Dossier IA29133721
| Réalisé
par
Bunker-abri de type 502 pour deux groupes de combat (B 25 / 8), nord, lotissement Alfred Nakache (Brest)
Lécuillier Guillaume
(Contributeur)
Cliquez pour effectuer une recherche sur cette personne.
Lécuillier Guillaume
Chargé d'études d'Inventaire du patrimoine à la Région Bretagne.
Dossier
Dossier IA29133722
| Réalisé
par
Bunker-abri de type 502 pour deux groupes de combat (B 25 / 7), sud, lotissement Alfred Nakache (Brest)
Lécuillier Guillaume
(Contributeur)
Cliquez pour effectuer une recherche sur cette personne.
Lécuillier Guillaume
Chargé d'études d'Inventaire du patrimoine à la Région Bretagne.
Chargé d'études d'Inventaire du patrimoine à la Région Bretagne.