Association Gerfaut 29.
Résultats de la recherche : "Moignez Christian" 7 résultats
Notice d'illustration
IVR53_20265610003NUDA
|
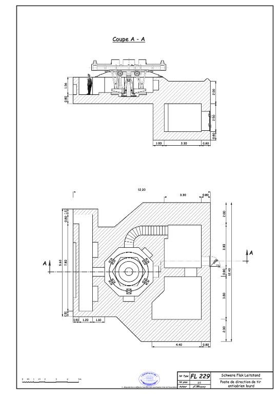
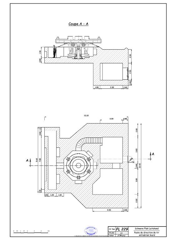
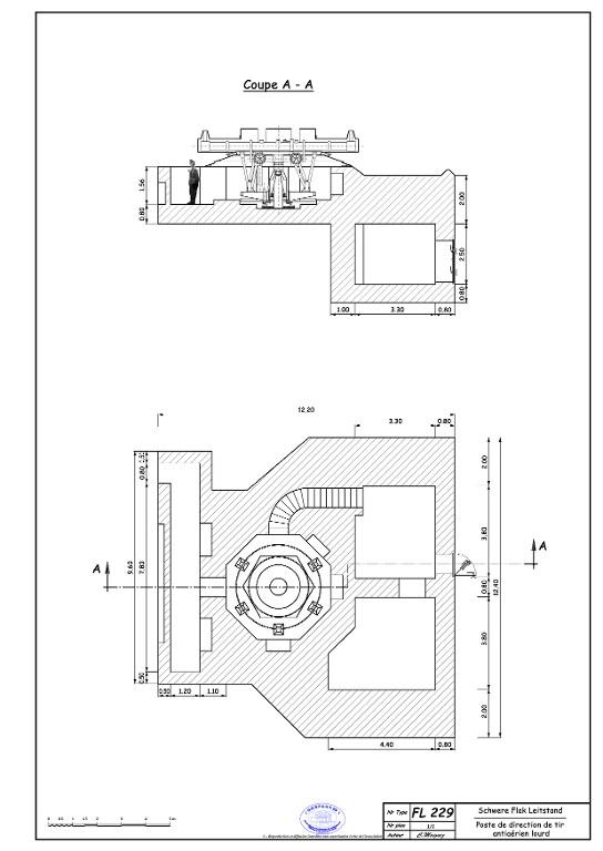
Bunker-poste de direction de tir de type Fl 229 équipé d'un télémètre, Le Cosquéric (Ploemeur)
Plan et coupe d'un bunker-poste de direction de tir de type Fl 229 pour batterie antiaérienne lourde (Schwere Flak Leitstand)
Moignez Christian
Moignez Christian
Cliquez pour effectuer une recherche sur cette personne.
Notice d'illustration
IVR53_20222905341NUCA
|
Bunker - casemate de type 634 avec cloche blindée pour mitrailleuse (B 97/15), Kerriou (Brest)
Plan d'un bunker-casemate de type 634 avec cloche bindée à 6 embrasures (Stand mit 6-Schartenturm)
Notice d'illustration
IVR53_20265610005NUDA
|
Bunker-abri de type 621 pour un groupe de combat (C) puis bunker-musée, Le Cosquéric (Ploemeur)
Plan et coupe d'un bunker-abri de type 621 pour un groupe de combat (Gruppenunterstand für 10 Mann)
Notice d'illustration
IVR53_20265610001NUDA
|
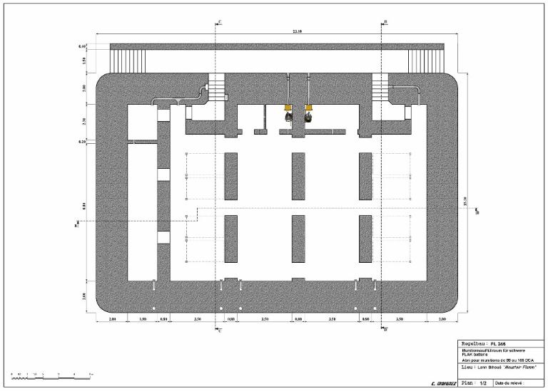
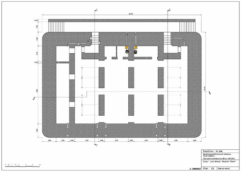
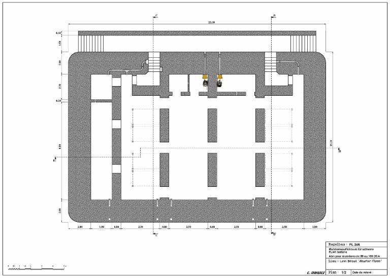
Bunker-magasin à munitions de type Fl 246 (A) puis bunker-musée, Breuzent - Le Cosquéric (Ploemeur)
Plan d'un bunker-magasin à munitions de type Fl 246 pour batterie antiaérienne lourde (Munitionsauffüllraum für schwere Flakbatterie). Il s'agit ici du bunker de la batterie antiaérienne de Moustoir Flamm (Lo 305) à Quéven près de Lann Bihoué
Notice d'illustration
IVR53_20265610000NUDA
|
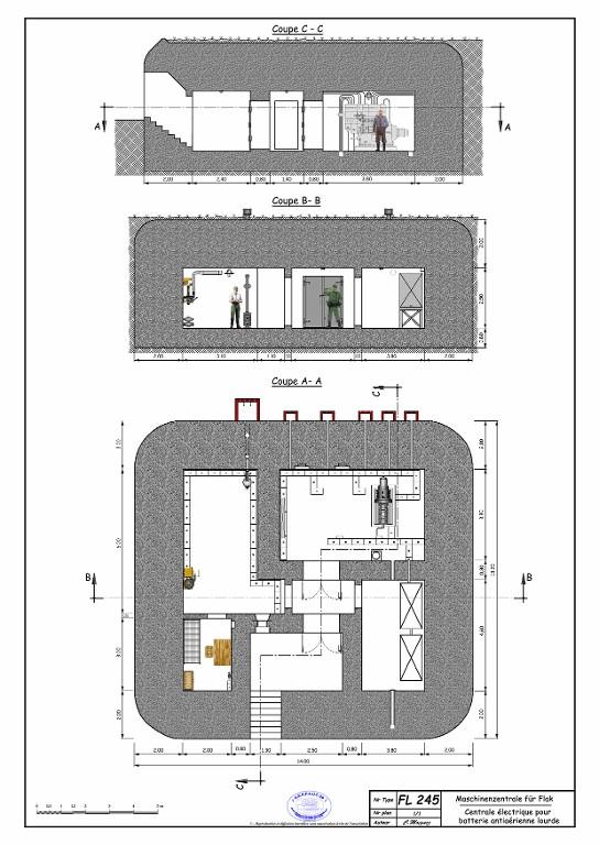
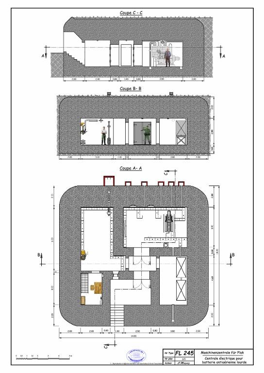
Bunker-centrale à machines de type Fl 245 (B) puis bunker-musée, Le Cosquéric (Ploemeur)
Plan et coupes d'un bunker-centrale à machines de type Fl 245 pour batterie antiaérienne (Machinenzentrale für Flak)
Notice d'illustration
IVR53_20265610002NUDA
|
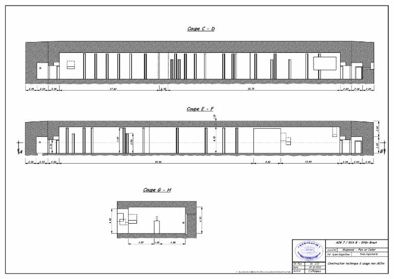
Bunker-magasin à munitions de type Fl 246 (A) puis bunker-musée, Breuzent - Le Cosquéric (Ploemeur)
Coupes d'un bunker-magasin à munitions de type Fl 246 pour batterie antiaérienne lourde (Munitionsauffüllraum für schwere Flakbatterie). Il s'agit ici du bunker de la batterie antiaérienne de Moustoir Flamm (Lo 305) à Quéven près de Lann Bihoué
Association Gerfaut 29.